Von politischen Nebelkerzen und anderen Halbwahrheiten

Mit zuverlässiger Regelmäßigkeit wird seit 2013 immer wieder über eine Gleisverlegung auf das Firmengelände des Automobillogistikers diskutiert. Erst kürzlich hat Josef Schäch (FDP-UW) suggeriert, es gäbe bestehende Verträge, die man einfach umsetzen müsse. Die Wirklichkeit sieht in diesem Punkt aber anders aus.
Gerne wird die Gleisverlegung von gewissen Kreisen wie eine Monstranz als Allheilmittel vor sich her getragen. Auch bei der Diskussion rund um die Neuplanung der Goiglmühlbrücke machte Schäch wieder einmal deutlich, wie wichtig doch eine weitere Tangente für Wolnzach wäre. Eine Tangente, die auf der jetzigen Fläche des Bahngleises verlaufen würde. Es ist das viel zitierte Altmann-Paket, das mit relativer Regelmäßigkeit wieder aus der Versenkung geholt wird.
Fakt ist: Seit dem Jahr 1998 zieht sich mit der Aufstellung des Bebauungsplanes Nr. 85 diese Diskussion wie ein roter Faden durch die Sitzungen des jeweiligen Gemeinderates. Alois Siegmund, der damals für die Freien Wähler Politik machte, erinnert sich: „Wir haben dem Sondergebiet nur unter der Prämisse zugestimmt, dass in diesem Zuge eine Gleisverlegung kommen wird.“ Eine klare Aussage. Entsprechend ist auch im Bebauungsplan Nr. 85 ein Bahngleis eingezeichnet. Doch mehr als ein bunter, politisch geschickt inszenierter Strich auf dem Papier war dies aber nie.
Ein harter Vorwurf, würde mancher jetzt sagen. Dennoch ist dieser nicht leicht von der Hand zu weisen. Zwei Jahre wurde damals an dem Bebauungsplan gearbeitet bis endlich am 10. August 2000 der Satzungsbeschluss erfolgte. Die Chance eine Gleisverlegung auf ein solides Fundament zu stellen, beispielweise mittels eines städtebaulichen Vertrages oder eines vorhabenbezogenes Bebauungsplanes.
Dass ein solches Vorhaben dennoch nicht alleine die Angelegenheit von Wolnzach und der Firma ist, das wurde im Laufe des damaligen Verfahrens schnell deutlich. Bereits im am 21. Juni 1999 wies die Deutsche Bahn in einem Schreiben an den Markt Wolnzach darauf hin, dass „eine Überplanung der Betriebsanlagen der Eisenbahn in jedem Fall rechtswidrig“ ist. Weiter heißt es in dem Schreiben: „Bezüglich des Gleisanschlusses für das Gebiet Altmann ist es erforderlich ein entsprechendes Planfeststellungsvorhaben einzuleiten. Hierbei ist das Eisenbahn-Bundesamt zu beteiligen.“ Eine eindeutige Aussage. Man hätte nun also schließen können, dass der Markt entsprechende Maßnahmen einleite, doch das Gegenteil war der Fall: Die Weiche, die auch der Grund war, weswegen die Deutsche Bahn Einspruch gegen die Plan eingelegt hatte, wurde kurzer Hand aus selbigen genommen. Dem entsprechend geänderten Bebauungsplan konnte dann, wie es im Schreiben vom 28. Juni 2000 heißt, zugestimmt werden.
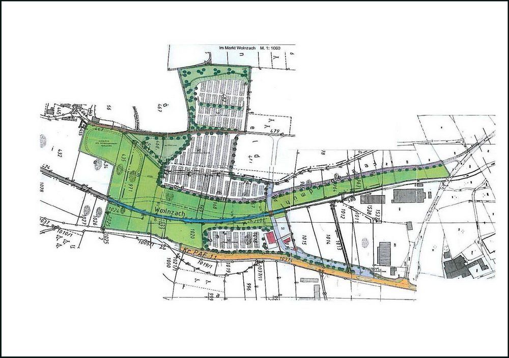
Dem lila eingezeichneten Gleis fehlt der Anschluss, denn die Weiche ist nicht Bestandteil des Bebauungsplans.
Warum das Projekt Gleisverlegung auf die Agenda gesetzt wurde, um es dann wieder heimlich, still und leise wieder in der politischen Versenkung verschwinden zu lassen, bleibt wohl ein Geheimnis der damaligen Wolnzacher Politik und auch heute noch die zentrale Frage. Es drängt sich mehr und mehr der Schluss auf, dass sich mit dieser Finte die Zustimmung des Gemeinderates gesichert wurde, denn weder wurden entsprechende Verträge geschlossen, noch wurde im Anschluss daran ein entsprechendes Planfeststellungsverfahren eingeleitet. Damaligen Aussagen zufolge, hätte man hier die Planungen zur Hochwasserfreilegung abwarten müssen. Mit diesen oder ähnlichen Worten aber auch mit der Aussage, es gebe einen schriftliche Vereinbarung, wurde der Gemeinderat ruhig gestellt. Man könnte wohl auch sagen, bewusst hinters Licht geführt, denn erst als die Pläne für die Renaturierung der Wolnzach 2007 fertig waren, wurde bekannt, dass dort von einer Gleisverlegung nicht mehr die Rede war.
Zwar hatte man den Damm, der am Richtung Haushausen entstehen soll, zurückversetzt, um die generelle Möglichkeit einer Verlegung nicht gänzlich auszuschließen, jedoch war das auch schon alles. Eine genaue Prüfung des Vorhabens hat nie stattgefunden. Wie Abteilungsleiter Werner Eidelsburger vom Wasserwirtschaftsamt Ingolstadt auf Anfrage unserer Redaktion bestätigte, war eine Verlegung zwar angedacht, wurde aber dann wieder verworfen. Womit dann auch das alte Gleis in den Plänen des Wasserwirtschaftsamtes zur Hochwasserfreilegung weiter Bestand hatte. „Wir haben erst im Jahre 2007 davon erfahren bei der Einsicht der Pläne davon erfahren“, so Siegmund weiter.
In den Plänen des Wasserwirtschaftsamtes ist das Gleis auf der alten trasse eingezeichnet.
Warum dies bei einem so enorm wichtigen Punkt wie der Gleisverlegung, für die es nach Schächs eigenen Worten Verträge angeblich geben soll, nicht der Fall sein soll und warum auch dort Jahre später das Gleis immer noch auf der alten Trasse eingezeichnet ist, lässt letzten Endes nur einen Schluss zu: Die Gleisverlegung war das politische Mittel zum Zweck, um entsprechende Beschlüsse im Gemeinderat zu bekommen. Anders kann man dies aus heutiger Sicht nicht interpretieren, denn ernsthafte Anstrengungen wurden diesbezüglich in der Ära Schäch nie unternommen. Im Gegenteil: Rückblickend bewertet Alois Siegmund das sogenannte Altmannpacket als eines, das alleine aufgrund seiner Größe nie realisiert werden konnte. Eine erste realistische Kostenschätzung hierzu gibt es erst seit 2015. Laut den Ausführungen von Bernhard Blass beläuft sich diese auf rund 6,6 Millionen Euro. Dabei machte er damals auch deutlich, dass sich die Deutsche Bahn sich an diesen Kosten nicht beteiligen werde.
Warum Schächs Partei nun ausgerechnet mit entsprechender Vehemenz das einfordert, was er zu seiner eigenen Amtszeit versäumt wurde, ist die große Frage. Vielleicht weil es heute opportun ist oder sich mit diesem Thema an den unterschiedlichsten Stammtischen Stimmung machen lässt. Die Fakten jedoch bleiben dabei meist auf der Strecke. Anders gesagt: Man ist mit dieser gesamten Diskussion rund um die Gleisverlegung im Zeitalter des Postfaktischen angekommen, zumindest wenn man die Aussagen der FDP-UW-BGW zugrundelegt.
Kommentare
Einen Kommentar schreiben
Sie müssen sich anmelden, um Kommentare hinzuzufügen.