Geroldshauser Bäche werden renaturiert
Hier bei der Albrechtsmühle sollen die Wehre weichen
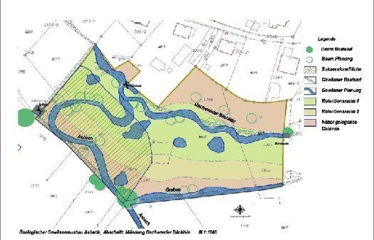
„Land unter“ hieß es in der Vergangenheit in Geroldshausen immer wieder, denn immer wieder stehen bei Starkregenereignissen das Gebiet im Bereich Asbach und Gschwender Bächlein unter Wasser. Nun soll im Zuge des ökologischen Gewässerausbaus der Asbach renaturiert und somit auch die Gefahr von Überschwemmungen deutlich gemildert werden.
Zusammen mit dem Wasserwirtschaftsamt wurde hier nun eine Planung auf den Weg gebracht die nicht nur ökologisch, sondern auch ökonomisch sinnvoll ist. „Immer wieder kam es in den vergangenen Jahren zu Überschwemmungen in diesem Bereich“, berichtet Sylvester Kohlhuber, und so ist es aus seiner Sicht umso erfreulicher, dass sich hier jetzt etwas tut.


Ein natürlicher Bachlauf soll hier die Fließgeschwindigkeit deutlich verringern, aber auch die Wiesen bieten einen ausreichend Retentionsraum. „Dies ist auch für Wolnzach eine sehr wichtige Maßnahme, denn durch diese Hochwasserrückhaltung fließt dann weniger Wasser in die Wolnzach“, so Sylvester Kohlhuber.
Doch nicht nur aus Sicht des Hochwasserschutzes ist diese Maßnahme äußerst sinnvoll. Auch ökologisch wird sich dies bezahlt machen, davon ist man im Markt überzeugt. Seltenen Pflanzen und Gräsern wird hier Raum zu Entfaltung gegeben. „Das Wasserwirtschaftsamt legt dabei einen besonderen Wert darauf, dass eine kleine Fläche unberührt bleibt“, so Bürgermeister Jens Machold. Doch nicht jeder Geroldshauser ist hier froh darüber. „Schafft man sich hier nicht eine Stanz’nzucht?“, so die Befürchtung eines besorgten Anliegers, der forderte, dass die gesamte Fläche gemäht werden sollte.
"Hier kann man von einer gelungenen Planung sprechen", so Sylvester Kohlhuber.
Hier werde man noch einmal mit dem Wasserwirtschaftsamt sprechen, sagte Bürgermeister Jens Machold zu, dennoch ist wohl am Ende davon auszugehen, dass ein Teil des Areals unberührt bleiben wird. „Besonders die Gräser hat das Wasserwirtschaftsamt hier im Blick“, erläutert Sylvester Kohlhuber. „Natürlich wird man hier Maßnahmen ergreifen müssen, wenn sich dort Pflanzen ansiedeln sollten, die nicht gewünscht sind, aber grundsätzlich ist ein Stück Natur pur nur zu begrüßen.“
Aber nicht nur im Bereich des Gschwender Bächleins auch an der alten Albrechtsmühle soll der Bach wieder in seine natürliche Form gebracht werden. „Hier sollen die Betonwehre entfernt werden“, erklärt Steffanie Meier, die in beiden Fällen die Planungen für den Markt erstellt hat. Und so wird der Natur, auch wenn es so mancher Geroldshauser gerne anders gehabt hätte, mehr Raum zu Entfaltung gegeben.

„Könnte man hier nicht besser die Kraft des Wassers nutzen?“ Doch Bürgermeister Jens Machold stellte am Ende klar, dass dies ein massiver Eingriff in den Bach wäre, und vom Wasserwirtschaftamt nicht genehmigt werden würde. Zusätzlich würde so etwas wohl auch wirtschaftlich wenig bringen.
Kommentare
Einen Kommentar schreiben
Sie müssen sich anmelden, um Kommentare hinzuzufügen.